Henryka Sienkiewicza, Poznań
4 pokoje I 3 balkony I Jeżyce
4 000 zł
Numer oferty 4224
Stan oferty Aktualna
Województwo wielkopolskie
Miasto Poznań
Ulica Henryka Sienkiewicza
Dzielnica Jeżyce
Cena sprzedaży 4 000 zł
Powierzchnia 112 m2
Liczba pokoi 4
Piętro 3
Liczba pięter w budynku 4
Typ budynku
Opis Zapraszam do zapoznania się z ofertą najmu dużego mieszkania w jednej z kamienic na poznańskich Jeżycach.

Nieruchomość znajduje się w samym sercu Jeżyc - jednej z najbardziej klimatycznych i dynamicznie rozwijających się dzielnic Poznania. W otoczeniu znajduje się w pełni rozwinięta infrastruktura handlowo-usługowa. W pobliżu wiele klimatycznych lokali gastronomicznych oraz sklepów spożywczych, a także przedszkoli i szkół.

Atutem lokalizacji jest również świetny dostęp do komunikacji miejskiej - zaledwie kilka minut od budynku znajduje się przystanek Rondo Kaponiera, centralny punkt komunikacyjny miasta.

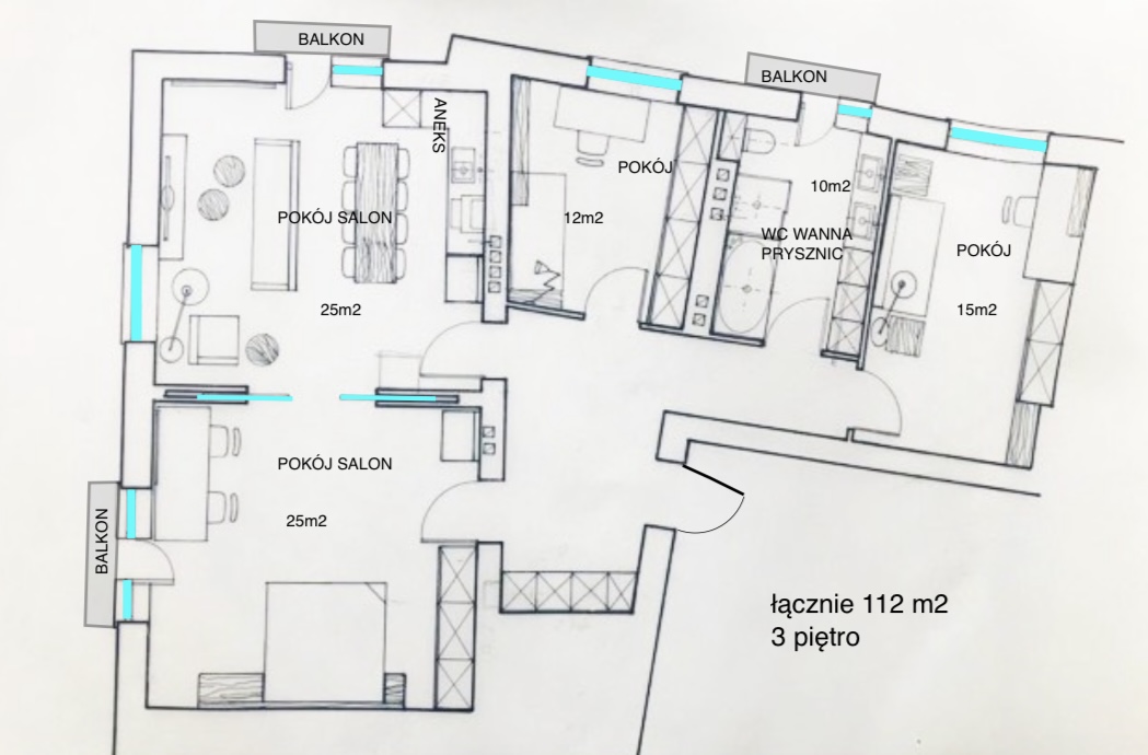
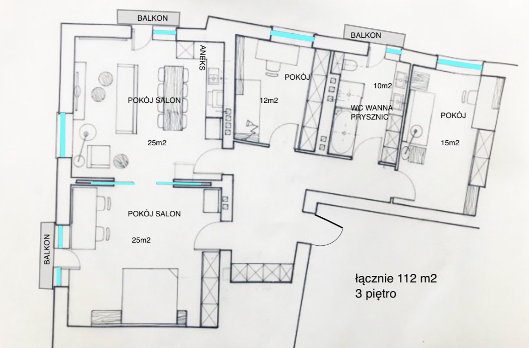
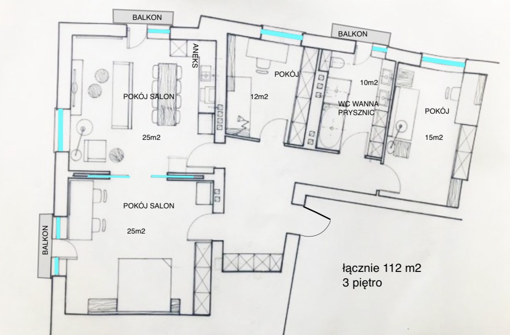
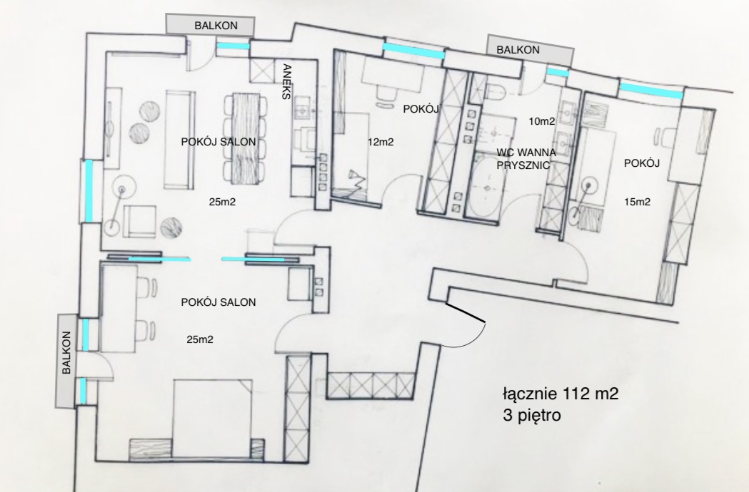
Mieszkanie o powierzchni 112 m2 składa się z:

- 3 pokoi

- salonu z aneksem kuchennym

- przestronnego korytarza

- łazienki

- 3 balkonów.

Czynsz obejmuje: 4000 zł czynszu dla właściciela + 750 zł czynszu administracyjnego + prąd co 2 miesiące.

Wymagana kaucja oraz prowizja dla biura.

Powyższa oferta nie stanowi oferty handlowej w rozumieniu art. 66 § 1 kodeksu cywilnego oraz innych właściwych przepisów prawnych.

Po więcej szczegółów zapraszam do kontaktu.

Aleksandra Burzyńska tel. 533 302 747

Odpowiedzialność zawodowa licencja nr 20024

Zapewniam bezpieczeństwo transakcji pod nadzorem licencjonowanego pośrednika.

Forma właśności własność
Aleksnadra Burzyńska
Agent prowadzący
Imię Nazwisko Aleksandra Burzyńska
Telefon kom. 533302747

Ułańska, Poznań
Ułańska 2pok w zamkniętym kompleksie
2 pokoje ,2 piętro, 51 m2
2 800

Os. Pozimkowe, poznański
Suchy Las kawalerka
1 pokój ,1 piętro, 36 m2
1 800