| Numer oferty | 4239 |
| Stan oferty | Aktualna |
| Województwo | wielkopolskie |
| Miasto | Poznań |
| Ulica | Sokoła |
| Dzielnica | Sołacz |
| Cena sprzedaży | 525 000 zł |
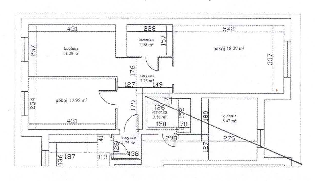
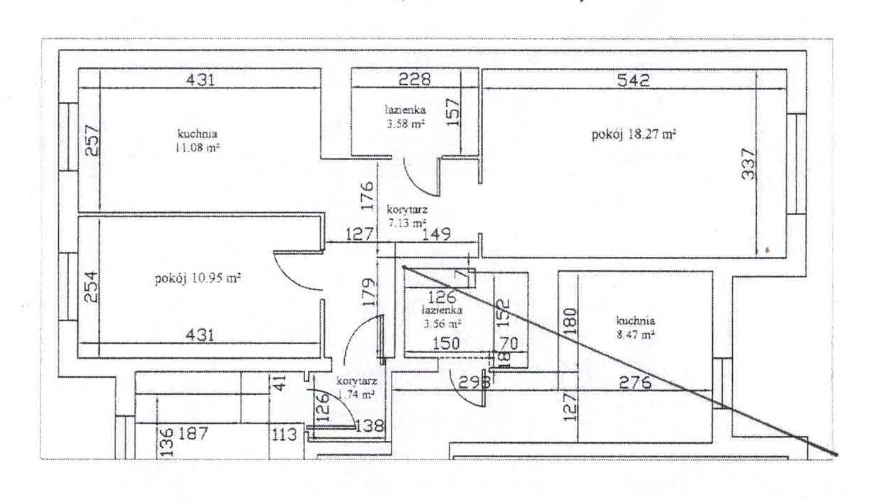
| Powierzchnia | 52.75 m2 |
| Liczba pokoi | 2 |
| Piętro | 1 |
| Liczba pięter w budynku | 4 |
| Typ budynku | |
| Opis | Sołacz – dwa pokoje na pierwszym piętrze. Polecam do sprzedaży mieszkanie w bloku z lat 90, położonym przy ul. Sokoła. Mieszkanie znajduje się na pierwszym piętrze budynku z wejściem od dziedzińca dodatkowo zamykanego bramą. Mieszkanie składa z dwóch oddzielnych pokoi 18m2 i 11m2, dużej kuchni 11m2, łazienki 3,5m2 oraz korytarza. Dodatkowo zaadoptowano część korytarza tworząc dodatkowe wyciszenie orz miejsc na buty i odzież wierzchnią. Mieszkanie do remontu, okna drewniane starszego typu do renowacji/wymiany. Do mieszkania przynależy piwnica na IV kondygnacji budynku o metrażu 3,28 m2. Czynsz 1000 zł W pobliżu znajdują się sklepy, apteki, bank i pełna infrastruktura handlowo usługowa. Uniwersytet Przyrodniczy w zasięgu krótkiego spaceru. W bliskiej odległości tereny spacerowe Parku Sołackiego, park Wodziczki i jezioro Rusałka. Przystanki tramwajowe PST (12, 14, 15, 16, 19, 20, 201 nocny) oraz 9 i 11 z Sołacza. W kilkanaście minut dostaniemy się na Stary Rynek jak i do centrum - zarówno autem i komunikacją miejską. Mieszkanie spółdzielcze-własnościowe. Możliwość założenia Księgi Wieczystej. Polecam i zapraszam na prezentację Krzysztof Szymański 698 619 769 |
| Forma właśności | spółdzielcze-własnościowe |

| Imię Nazwisko | Krzysztof Szymański |
| Telefon kom. | 698619769 |